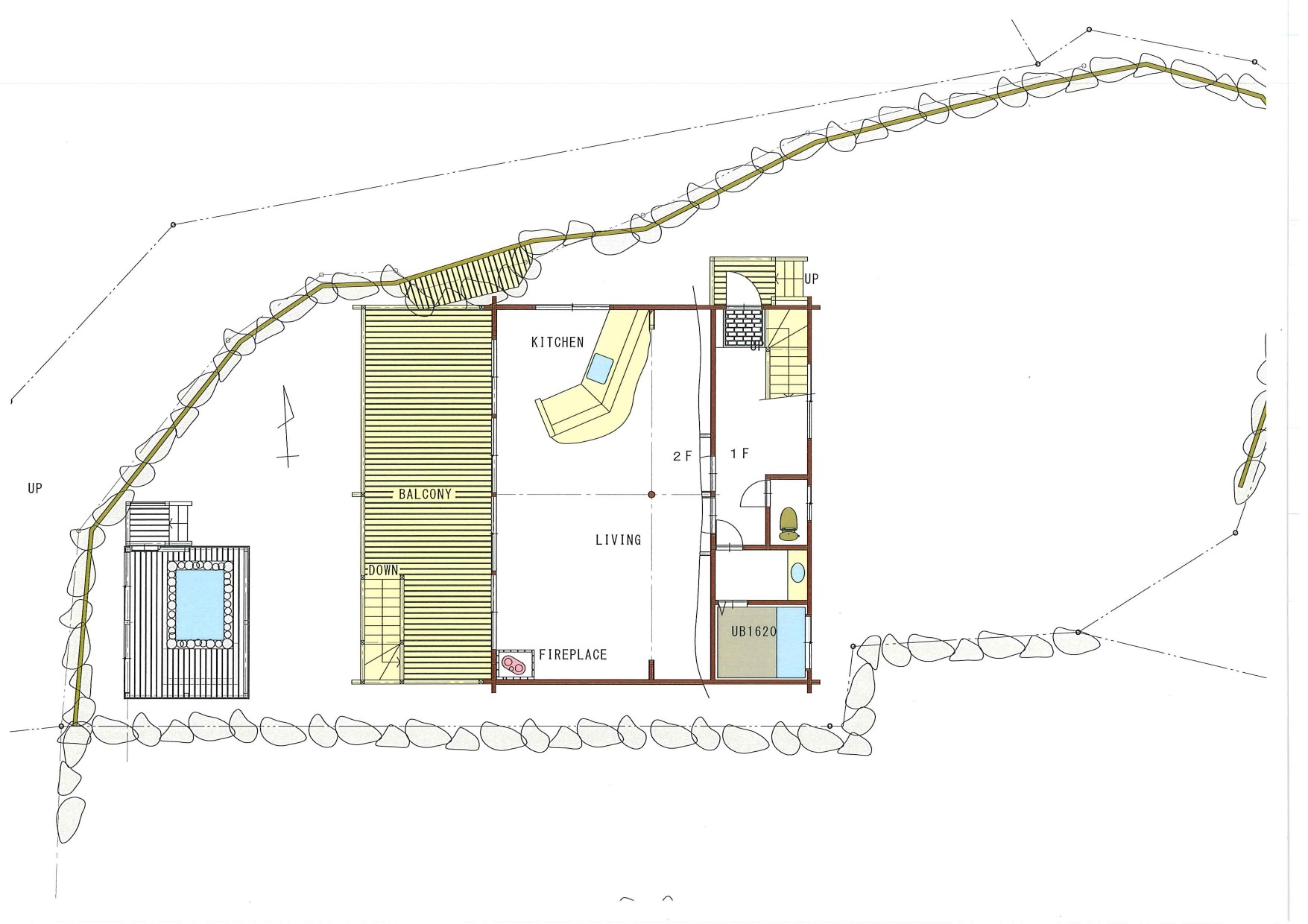
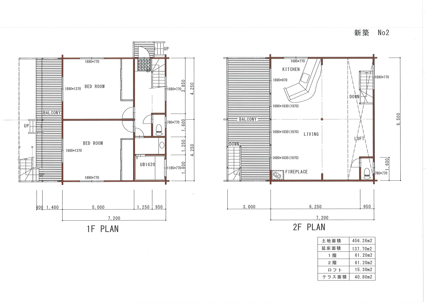
物件情報 新築物件 オーシャンビュー白崎 区画 No.2【天然温泉露天風呂付価格そのまま】 オーシャンビュー白崎 区画 No.2【天然温泉露天風呂付価格そのまま】 新築! 販売価格 3,980万円! このログハウスの別荘は現在建築中です。高台に位置し、テラスからまた庭から「日本のエーゲ海」と言われている白崎海洋公園が一望でき、夕陽に染まる海洋を見ながらゆったりとした時間が演出されます。海岸まで下りれば、ダイビングショップがあり、隣には白崎のビーチが広がります。2LDKの間取りで2階にはロフト・暖炉もあり、ユニットバスには天然温泉が引き込まれています。2階のベランダは十分に広く、みんなでBQが楽しめます。実は天然温泉付きの露天風呂もついてるんです。